












Spațiu comercial Buna Ziua, 200 mp.
Cluj-Napoca, Buna-Ziua
2.750€ + TVA
Camere
5
Suprafata utila
200 mp
Suprafata construita
220 mp
Parcari
3
- ID:P2332
- Nr. camere:5
- S. utila:200.00 mp
- S. construita:220.00 mp
- S. curte:20.00 mp
- Comp.:Flexibil
- Nr. bai:4
- Terase:1
- Nr. parcari:3
- Tip imobil:Bloc
- Regim inaltime:S+P+5
Descriere
GDN Imobiliare are plăcerea de a vă prezenta, în vederea închirierii, un spațiu comercial amplasat pe str. Bună Ziua, amplasat la parterul unui imobil mixt - bloc de locuințe cu spații comerciale la parter.
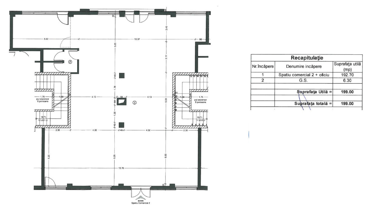
Proprietatea are o suprafață utilă totală de 199 mp, fiind împărțite astfel: spațiu open-space, grup sanitar. Momentan este compartimentat, însă există posibilitatea de recompartimentare interioară după preferințe.
Spațiul se pretează pentru activități comerciale: magazin, showroom, clinică medicală. Spațiul se va preda viitorului chiriaș nemobilat.
De spațiu aparține si o terasă de aprox. de 25 mp in fata clădirii.
Spațiul beneficiază de 3 locuri de pacare în fața clădirii.
Pentru detalii suplimentare și programări la vizionări, vă stăm cu plăcere la dispoziție.
GDN Imobiliare – prietenii și consultanții voștri imobiliari, de la idee până la cheie!
Citeste mai mult
Proprietatea are o suprafață utilă totală de 199 mp, fiind împărțite astfel: spațiu open-space, grup sanitar. Momentan este compartimentat, însă există posibilitatea de recompartimentare interioară după preferințe.
Spațiul se pretează pentru activități comerciale: magazin, showroom, clinică medicală. Spațiul se va preda viitorului chiriaș nemobilat.
De spațiu aparține si o terasă de aprox. de 25 mp in fata clădirii.
Spațiul beneficiază de 3 locuri de pacare în fața clădirii.
Pentru detalii suplimentare și programări la vizionări, vă stăm cu plăcere la dispoziție.
GDN Imobiliare – prietenii și consultanții voștri imobiliari, de la idee până la cheie!
Specificatii
Curent
Apa
Canalizare
Gaz
Acces internet
Centrala proprie
Incalzire pardoseala
Aer conditionat
Ventiloconvectoare
Aport de aer proaspat
Izolatie Exterior
Vopsea lavabila
Faianta
Gresie
Ferestre PVC
Iluminat interior sistem LED
Apometre
Contor gaz
Partial mobilat
Acoperis
Curte
Zsolt Kereszturi
0745 206 663
Esti interesat de aceasta proprietate ?