
Spatiu comercial, parter, 95 mp, George Enescu zona Lidl
Craiova, George Enescu
1.200€
Camere
4
Suprafata utila
95 mp
An constructie
1975
- ID:P3535
- Nr. camere:4
- S. utila:95.00 mp
- Comp.:Compartimentat
- Nr. bai:1
- An constructie:1975
- Structura rezistenta:Beton
- Tip imobil:Bloc
- Regim inaltime:P+4
- Garantie:2400
Descriere
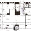
GDN Elite Imobiliare va propune spre inchiriere un spatiu comercial situat in cartierul George Enescu zona Lidl fiind situat intr-o cladire cu regim de inaltime p+4. Acesta dispune de o suprafata utila totala de 95 mp, beneficiind de urmatoarea compartimentar, 4 incaperi adiacente ce pot deservii pentru mai multe domenii de activitate, un grup sanitar, acces direct din strada principala, avand un vad foarte bun. Datorita atat traficului auto cat si cel pietonal ridicat spatiul fiind pretabil pentru, restaurante, cafenele, bineinteles precum si spatii de birouri, salon, cabinet dispunand de scara interioara. Va asteptam cu drag la vizionare!
Citeste mai mult
Specificatii
Apa
Canalizare
Gaz
Vopsea lavabila
Var
Gresie
Ferestre Termopan
Aplice
Nemobilat
Control electric individual
Paza
Supraveghere video
Florin Nicolae
0739 746 300
Esti interesat de aceasta proprietate ?