









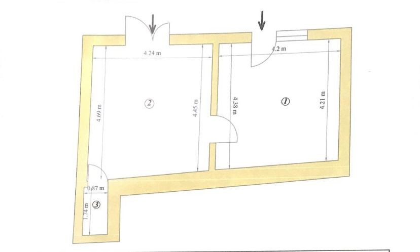
Spațiu comercial ultracentral format din 2 camere cu 2 intrări separate, 40,18mp
Oradea, Ultracentral
100.000€
Camere
2
Suprafata utila
40.18 mp
Suprafata construita
46 mp
An constructie
1990
- ID:P3362
- Nr. camere:2
- S. utila:40.18 mp
- S. construita:46.00 mp
- Front stradal:12.00 m
- Comp.:Compartimentat
- Nr. bai:1
- An constructie:1990
- Structura rezistenta:Caramida
- Tip imobil:Casa/Vila
Descriere
GDN Estates are plăcerea de a vă prezenta în vederea vânzării un spațiu comercial, situat în zona ultracentrală, pe strada George Barițiu nr 5.
Imobilul este situat într-o zonă accesibilă, în apropiere fiind: Filarmonica de Stat, Teatru REGINA MARIA, Piața Unirii, zona Pietonală, instituții publice, școli, gradinițe, restaurante, magazine, farmacii, mijloace de transport în comun, etc
Proprietatea are o suprafață utilă de 40,18 mp și o suprafață construită de 46 mp, fiind compartimentată astfel:
- 2 camere, din care una dintre camere are in prelungirea sa si zona de baie
-dispune de 2 intrări separate.
Imobilul se va preda nemobilat și neutilat.
A fost renovat recent, fiindu-i schimbat în întregime atât instalatia electrică cât și instalația sanitară.
Pentru doritori există posibilitate de mansardare.
Confortul termic al imobilului se realizează cu convectoare electrice radiante pe tavan cu sistem ambiental de reglare a temperaturii interioare.
Instalația electrică este atât duofazic cât si trifazic.
Starea foarte bună a imobilului, costurile de întreținere reduse, sunt câteva dintre aspectele care fac această ofertă să fie tentantă pentru cei care își doresc un birou modern, potrivit pentru contabilitate, avocatură, salon de infrumusețare, croitorie, etc
Prețul este de 100.000 euro negociabil.
Pentru detalii suplimentare și programări la vizionări, vă stăm cu plăcere la dispoziție!
Citeste mai mult
Imobilul este situat într-o zonă accesibilă, în apropiere fiind: Filarmonica de Stat, Teatru REGINA MARIA, Piața Unirii, zona Pietonală, instituții publice, școli, gradinițe, restaurante, magazine, farmacii, mijloace de transport în comun, etc
Proprietatea are o suprafață utilă de 40,18 mp și o suprafață construită de 46 mp, fiind compartimentată astfel:
- 2 camere, din care una dintre camere are in prelungirea sa si zona de baie
-dispune de 2 intrări separate.
Imobilul se va preda nemobilat și neutilat.
A fost renovat recent, fiindu-i schimbat în întregime atât instalatia electrică cât și instalația sanitară.
Pentru doritori există posibilitate de mansardare.
Confortul termic al imobilului se realizează cu convectoare electrice radiante pe tavan cu sistem ambiental de reglare a temperaturii interioare.
Instalația electrică este atât duofazic cât si trifazic.
Starea foarte bună a imobilului, costurile de întreținere reduse, sunt câteva dintre aspectele care fac această ofertă să fie tentantă pentru cei care își doresc un birou modern, potrivit pentru contabilitate, avocatură, salon de infrumusețare, croitorie, etc
Prețul este de 100.000 euro negociabil.
Pentru detalii suplimentare și programări la vizionări, vă stăm cu plăcere la dispoziție!
Specificatii
Curent
Apa
Canalizare
Fosa septica
Curent trifazic
Utilitati in zona
Convectoare
Izolatie Interior
Vopsea lavabila
Parchet
Gresie
Ferestre Termopan
Aplice
Iluminat interior sistem LED
Margareta Hojda
0749 645 066
Esti interesat de aceasta proprietate ?