

Cabinete Medicale, 225 mp, 14 incaperi, Cartier 1 Mai, Zona Medicina Veche
Craiova, 1 Mai
3.000€
Camere
14
Suprafata utila
225 mp
Parcari
1
- ID:P5206
- Nr. camere:14
- S. utila:225.00 mp
- Comp.:Compartimentat
- Nr. bai:4
- Nr. parcari:1
- Structura rezistenta:Caramida
- Tip imobil:Bloc
- Regim inaltime:P+3
- Avans:3000
- Garantie:3000
Descriere
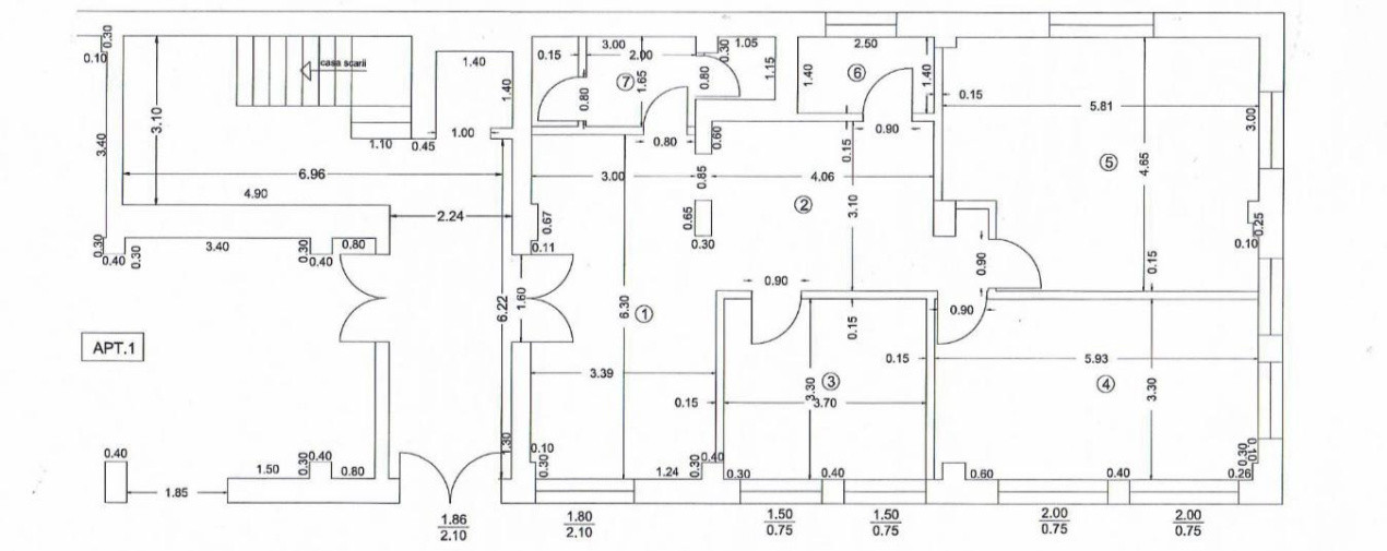
GDN Elite Imobiliare va propune spre inchiriere un spațiu comercial care se pretează exclusiv pentru cabinete medicale, având o suprafață totală de 225 mp și fiind situat la parterul unui bloc modern, finalizat în anul 2023. Spațiul este compartimentat în două corpuri distincte, fiecare conceput astfel încât să răspundă cerințelor activităților medicale.
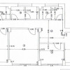
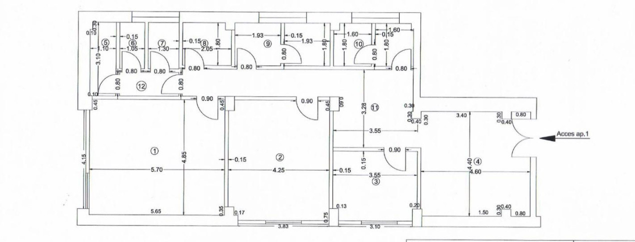
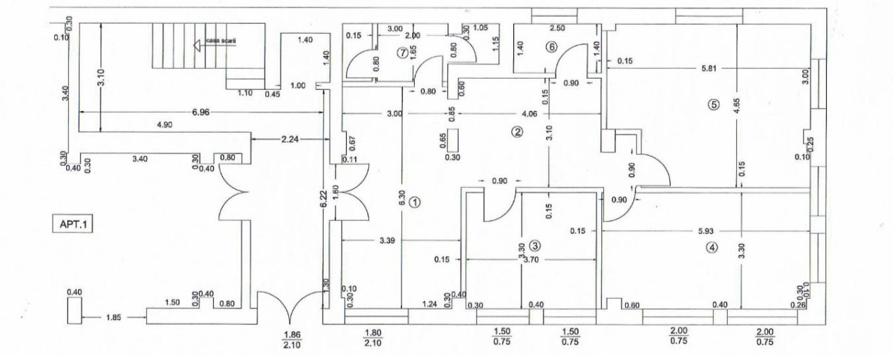
Primul corp are o suprafață de 101 mp și este format din 7 încăperi, două grupuri sanitare, recepție și sală de sterilizare. Cel de-al doilea corp are o suprafață utilă de 124 mp, fiind compus tot din 7 încăperi, două grupuri sanitare, recepție și sală de sterilizare.
Spațiul este recent finalizat și beneficiază de finisaje de calitate superioară, precum zugrăveli stucco, linoleu antibacterian și obiecte sanitare moderne. Încălzirea și răcirea se realizează prin sistem de ventiloconvectoare, iar tâmplăria este marca Portadoors, oferind un plus de izolare fonică și termică. În plus, spațiul este dotat cu sistem de supraveghere video și dispune de o recepție funcțională, pregătită pentru activitatea medicală.
Datorită amplasării sale, în imediata apropiere a Facultății de Medicină, spațiul reprezintă o alegere ideală pentru clinici, laboratoare sau cabinete medicale individuale.
Vă așteptăm cu drag la vizionare!
Citeste mai mult
Primul corp are o suprafață de 101 mp și este format din 7 încăperi, două grupuri sanitare, recepție și sală de sterilizare. Cel de-al doilea corp are o suprafață utilă de 124 mp, fiind compus tot din 7 încăperi, două grupuri sanitare, recepție și sală de sterilizare.
Spațiul este recent finalizat și beneficiază de finisaje de calitate superioară, precum zugrăveli stucco, linoleu antibacterian și obiecte sanitare moderne. Încălzirea și răcirea se realizează prin sistem de ventiloconvectoare, iar tâmplăria este marca Portadoors, oferind un plus de izolare fonică și termică. În plus, spațiul este dotat cu sistem de supraveghere video și dispune de o recepție funcțională, pregătită pentru activitatea medicală.
Datorită amplasării sale, în imediata apropiere a Facultății de Medicină, spațiul reprezintă o alegere ideală pentru clinici, laboratoare sau cabinete medicale individuale.
Vă așteptăm cu drag la vizionare!
Specificatii
Curent
Apa
Canalizare
Gaz
Fosa septica
Curent trifazic
CATV
Telefon
Acces internet
Fibra optica
Utilitati in zona
Convectoare
Ventiloconvectoare
Izolatie Exterior
Linoleum
Ferestre Termopan
Spoturi
Apometre
Contor caldura
Contor gaz
Nemobilat
Interfon
Videointerfon
Supraveghere video
Adriana Mierlă
0757 815 902
Esti interesat de aceasta proprietate ?