











Casa P+1, 300 MP teren, 140 MP utili, comuna Malu Mare, zona Selgros
Malu Mare, Periferie
250.000€
Camere
5
Suprafata utila
140 mp
Suprafata construita
195 mp
Bai
2
An constructie
2025
- ID:P5148
- Nr. camere:5
- Nr. dormitoare:4
- S. utila:140.00 mp
- S. terase:20.00 mp
- S. construita:195.00 mp
- S. teren:300.00 mp
- Nr. bucatarii:1
- Nr. bai:2
- Nr. balcoane:1
- Front stradal:17.00 m
- Nr. fronturi:1
- An constructie:2025
- Structura rezistenta:BCA
- Regim inaltime:P+1
Descriere
GDN Elite Imobiliare va propune spre vanzare o proprietate compusa dintr-o casa cu regim de inaltime P+1 si un teren cu suprafata de 300 mp. Casa, cu o suprafata construita de 195 mp si 140 mp utili, este construita pe cadre de beton si compartimentata cu BCA, izolata cu polistiren de 10 cm.
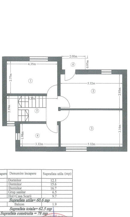
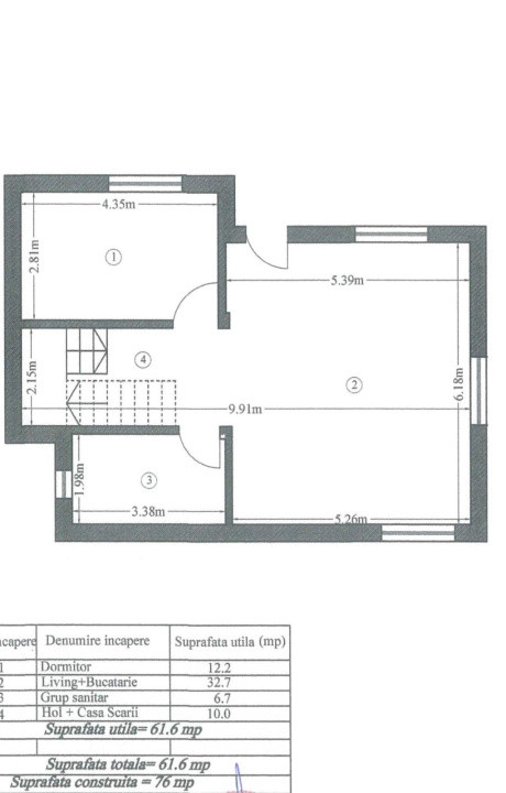
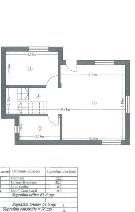
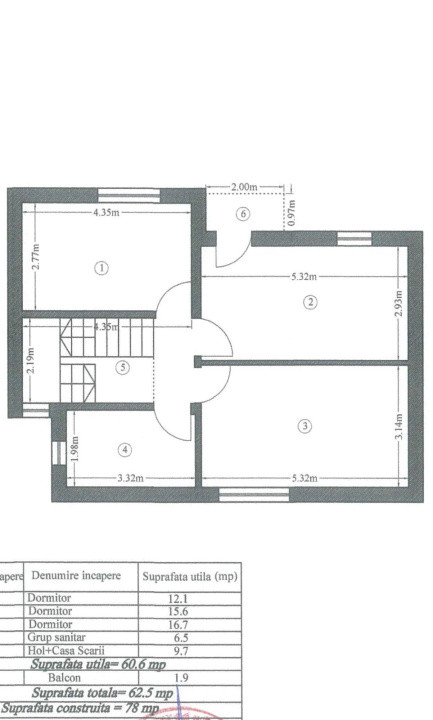
Locuinta se remarca prin soliditate, eficienta energetica si atentia la detalii, predarea acesteia fiind la cheie dispunand de finisaje moderne si materiale de buna calitate. Imobilul este dotat cu incalzire prin pardoseala, centrala termica proprie, tamplarie Gealan tripan, sistem de supraveghere video, porti electrice cu telecomanda ce confera functionalitate pentru accesul auto. Aceasta dispune de o compartimentare practica si echilibrata, la parterul casei regasim livingul cu bucatarie open-space ce isi face accesul pe terasa ce ulterior va fi inchisa in sticla, dormitor si baie, iar la etaj regasim trei dormitoare, baie, si un balcon.
Terenul de 300 mp, va fi amenajat cu spatii verzi si pavele. Intreaga proprietate este imprejmuita cu gard de beton si securizata, oferind intimitate si liniste intr-o zona rezidentiala selecta.
In apropiere regasim, Selgros, Dedeman, Rompetrol, strati de mijloace de transport in comun, magazine.
Va asteptam cu drag la vizionare!
Citeste mai mult
Locuinta se remarca prin soliditate, eficienta energetica si atentia la detalii, predarea acesteia fiind la cheie dispunand de finisaje moderne si materiale de buna calitate. Imobilul este dotat cu incalzire prin pardoseala, centrala termica proprie, tamplarie Gealan tripan, sistem de supraveghere video, porti electrice cu telecomanda ce confera functionalitate pentru accesul auto. Aceasta dispune de o compartimentare practica si echilibrata, la parterul casei regasim livingul cu bucatarie open-space ce isi face accesul pe terasa ce ulterior va fi inchisa in sticla, dormitor si baie, iar la etaj regasim trei dormitoare, baie, si un balcon.
Terenul de 300 mp, va fi amenajat cu spatii verzi si pavele. Intreaga proprietate este imprejmuita cu gard de beton si securizata, oferind intimitate si liniste intr-o zona rezidentiala selecta.
In apropiere regasim, Selgros, Dedeman, Rompetrol, strati de mijloace de transport in comun, magazine.
Va asteptam cu drag la vizionare!
Specificatii
Curent
Apa
Canalizare
Gaz
Fibra optica
Sistem irigatie
Centrala proprie
Incalzire pardoseala
Izolatie Exterior
Vopsea lavabila
Faianta
Parchet
Gresie
Ferestre Termopan
Usa intrare PVC
Usa interior Lemn
Apometre
Contor caldura
Contor gaz
Nemobilat
Curte
Cristina Dabu
0771311619
Esti interesat de aceasta proprietate ?