











Casă de vânzare Reghin - Solovăstru
Solovastru, Sud-Vest
87.000€
Camere
3
Suprafata utila
100 mp
Suprafata construita
126 mp
Bai
1
An constructie
2025
- ID:P5349
- Nr. camere:3
- Nr. dormitoare:2
- S. utila:100.00 mp
- S. terase:26.00 mp
- S. construita:126.00 mp
- S. teren:600.00 mp
- Nr. bucatarii:1
- Nr. bai:1
- Front stradal:20.00 m
- Nr. fronturi:1
- An constructie:2025
- Structura rezistenta:BCA
- Regim inaltime:D+P
- Orientare:Est
- Clasa energetica:A
Descriere
GDN Imobiliare Romania vă propune spre vânzare în comuna Solovăstru - lângă Reghin, în cartier rezidenţial nou, zona liniştită, o casă nouă în stadiu semifinisat
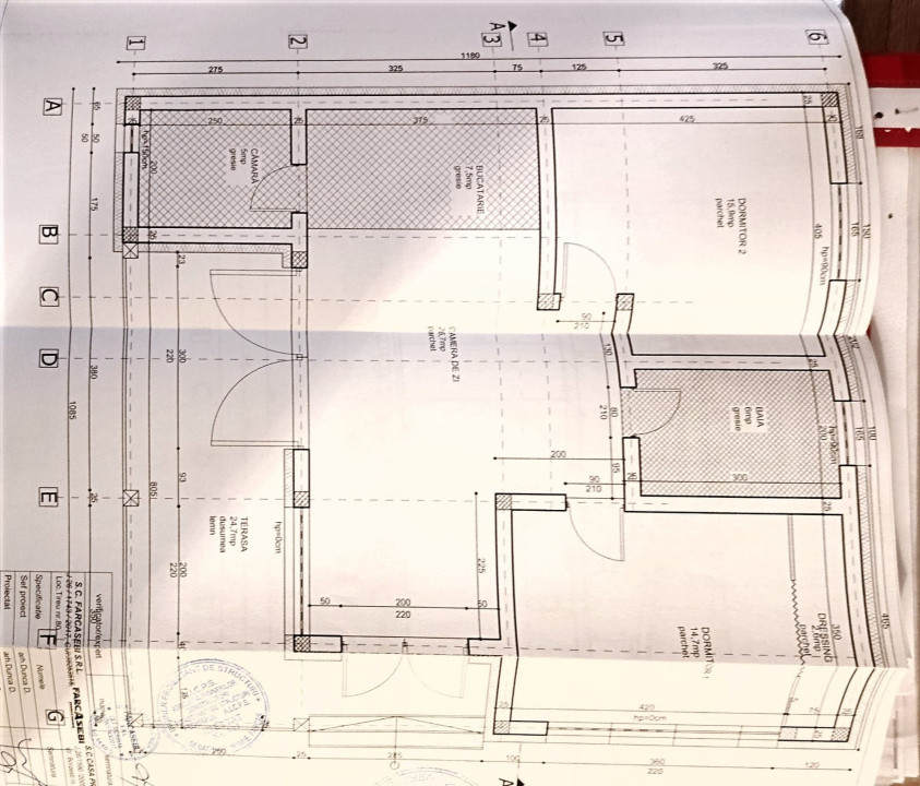
Casa este pe un singur nivel cu o suprafaţă construită la sol de 126 m.p și suprafață utilă de 100 m.p.
La parter: salon, hol, bucătărie, 2 dormitoare, baie, cămară și o terasă generoasă.
În casă a fost montat sistem de încălzire în pardoseală, geamuri termopan triplane, instalația electrică.
Casa a dispune de un teren în suprafață 600 mp.
Preţ direct de la vânzător este de 87.000 euro.
Comision 0 pentru cumpărător.
Pentru detalii suplimentare și programări la vizionări, vă stăm cu plăcere la dispoziție!
GDN Imobiliare – prietenii și consultanții voștri imobiliari, de la idee până la cheie
Citeste mai mult
Casa este pe un singur nivel cu o suprafaţă construită la sol de 126 m.p și suprafață utilă de 100 m.p.
La parter: salon, hol, bucătărie, 2 dormitoare, baie, cămară și o terasă generoasă.
În casă a fost montat sistem de încălzire în pardoseală, geamuri termopan triplane, instalația electrică.
Casa a dispune de un teren în suprafață 600 mp.
Preţ direct de la vânzător este de 87.000 euro.
Comision 0 pentru cumpărător.
Pentru detalii suplimentare și programări la vizionări, vă stăm cu plăcere la dispoziție!
GDN Imobiliare – prietenii și consultanții voștri imobiliari, de la idee până la cheie
Specificatii
Curent
Centrala proprie
Incalzire pardoseala
Calorifere
Ferestre Termopan
Usa intrare PVC
Bucatarie Nemobilata
Bucatarie Neutilata
Nemobilat
Daniel Friciu
0745 593 553
Esti interesat de aceasta proprietate ?