
Apartament 4 camere decomandat, 92.7mp, Lapus, Zona Mall Electroputere
Craiova, Lapus
157.000€
Camere
4
Suprafata utila
84.30 mp
Etaj
Etaj 8
Bai
2
An constructie
1985
- ID:P5394
- Nr. camere:4
- Nr. dormitoare:3
- S. utila:84.30 mp
- S. balcoane:8.40 mp
- Comp.:Decomandat
- Confort:1
- Etaj:Etaj 8
- Nr. bucatarii:1
- Nr. bai:2
- Nr. balcoane:2
- An constructie:1985
- An renovare:2025
- Structura:Beton
- Tip imobil:Bloc
- Regim inaltime:P+8
- Orientare:Mixta
- Clasa energetica:B
Descriere
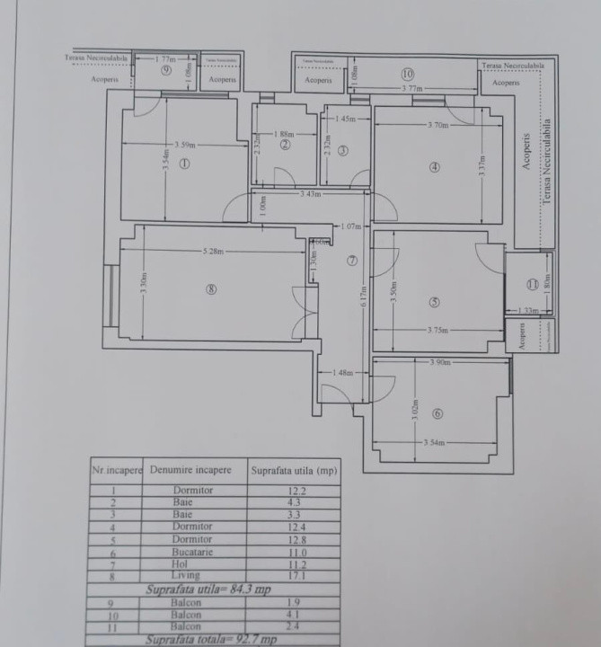
GDN Elite Imobiliare va propune spre vanzare un apartament cu 4 camere ce dispune de o compartimentare decomandata, fiind situat la etajul 8 din 8 in cartierul Lapus, zona Mall Electroputere. Imobilul este situat intr-o constructie finalizata in anul 1985 din cadre beton, ce masoara o suprafata utila de 84.3 mp, iar suprafata utila totala fiind de 92.7 mp, beneficiind de 3 balcoane, oferind o priveliste panoramica impresionanta, fiind trilateral cu orientare Estica-Nordica-Vestica.
Incalzirea apartamentului se realizeaza prin centrala termica cu calorifere, instalatia electrica si sanitara a fost refacuta in totalitate, imobilul urmand a fi finisat la cheie, dispunand de urmatoarea compartimentare: un hol in forma de L, accesul in fiecare camera realizandu-se separat, in partea stanga este pozitionat livingul, iar in partea dreapta regasim bucataria, cele 3 dormitoare care permit accesul catre cele doua balcoane si cele 2 bai beneficiind de aerisire cu geam.
Imobilul va fi predat cu usi interioare albe, gresie, faianta, parchet, tamplarie PVC, obiecte sanitare, urmand ca viitorul cumparator sa il poata configura dupa bunul plac.
Apartamentul este pozitionat intr-o zona cu trafic intens, regasind in apropiere Mall Electroputere, Centru Comercial Sucpi, Restaurant Intim, Centru Comercial Metal Lemn, mijloace de transport in comun, statie taxi, scoli , farmacii, magazine, caminul 10 etc.
Va asteptam cu drag la vizionare!
Citeste mai mult
Incalzirea apartamentului se realizeaza prin centrala termica cu calorifere, instalatia electrica si sanitara a fost refacuta in totalitate, imobilul urmand a fi finisat la cheie, dispunand de urmatoarea compartimentare: un hol in forma de L, accesul in fiecare camera realizandu-se separat, in partea stanga este pozitionat livingul, iar in partea dreapta regasim bucataria, cele 3 dormitoare care permit accesul catre cele doua balcoane si cele 2 bai beneficiind de aerisire cu geam.
Imobilul va fi predat cu usi interioare albe, gresie, faianta, parchet, tamplarie PVC, obiecte sanitare, urmand ca viitorul cumparator sa il poata configura dupa bunul plac.
Apartamentul este pozitionat intr-o zona cu trafic intens, regasind in apropiere Mall Electroputere, Centru Comercial Sucpi, Restaurant Intim, Centru Comercial Metal Lemn, mijloace de transport in comun, statie taxi, scoli , farmacii, magazine, caminul 10 etc.
Va asteptam cu drag la vizionare!
Specificatii
Curent
Apa
Canalizare
CATV
Telefon
Acces internet
Centrala proprie
Calorifere
Vopsea lavabila
Parchet
Gresie
Ferestre Termopan
Usa intrare Metal
Usa interior Lemn
Bucatarie Nemobilata
Nemobilat
Interfon
Lift
Lorena Rotaru
0764083015
Esti interesat de aceasta proprietate ?