












De vânzare apartament nou, finisat 3 camere, 74 mp. - Comuna Baciu
Baciu
149.900€
Camere
3
Suprafata utila
74.28 mp
Etaj
Etaj 3
Bai
1
Parcari
1
An constructie
2023
- ID:P3856
- Nr. camere:3
- Nr. dormitoare:2
- S. utila:74.28 mp
- S. balcoane:6.00 mp
- Comp.:Decomandat
- Confort:1
- Etaj:Etaj 3
- Nr. bucatarii:1
- Nr. bai:1
- Nr. balcoane:1
- Nr. parcari:1
- Pret parcare:7.000€
- An constructie:2023
- An renovare:2025
- Structura:Caramida
- Tip imobil:Bloc
- Regim inaltime:P+3
Descriere
GDN Imobiliare vă propune spre vânzare un apartament cu 3 camere, situat în Comuna Baciu, și amplasat la etajul 3 al unui imobil rezidențial construcție nouă, cu 3 niveluri, dat în folosință în anul 2024.
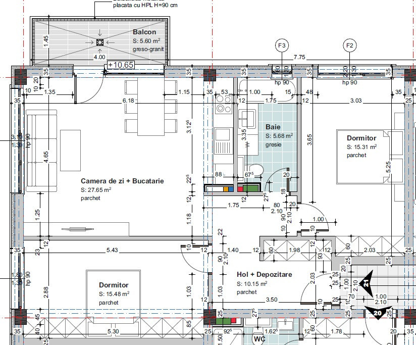
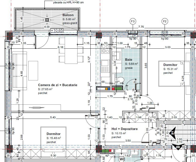
Proprietatea are o suprafață utilă de 74.28 mp, fiind împărțită astfel:
- cameră de zi cu bucătărie
- 2 dormitoare
- hol de 10 mp
- baie
- balcon de 5.6 mp
Locuința se va preda viitorului proprietar la stadiul finisat: pereți vopsiți, parchet SPC, gresie, uși interioare. Finisaje adiționale pot fi executate la cererea cumpărătorului.
Printre dotări se regăsesc: ușă metalică, interfon, utilități trase și pozate. Blocul este realizat pe structura de grinzi și cadre, zidărie din cărămidă, izolație termică de 10 cm, încălzire in pardoseala, tâmplărie Kömmerling - tripan (3 foi de sticlă).
Se poate achiziționa loc de parcare propriu la prețul de 7000 EUR.
Proprietatea se află in centrul comunei Baciu, in zona cu locuințe colective cu regim de înălțime mediu si locuințe unifamiliale. La parterul imobilului funcționează un supermarket, și în apropiere găsim stație autobuz. Blocul dispune de curte proprie, parcări exterioare, loc de joaca pentru copii.
Achiziția imobilului se poate realiza și prin credit ipotecar.
Pentru detalii suplimentare și programări la vizionări, vă stăm cu plăcere la dispoziție.
GDN Imobiliare – prietenii și consultanții voștri imobiliari, de la idee până la cheie!
Citeste mai mult
Proprietatea are o suprafață utilă de 74.28 mp, fiind împărțită astfel:
- cameră de zi cu bucătărie
- 2 dormitoare
- hol de 10 mp
- baie
- balcon de 5.6 mp
Locuința se va preda viitorului proprietar la stadiul finisat: pereți vopsiți, parchet SPC, gresie, uși interioare. Finisaje adiționale pot fi executate la cererea cumpărătorului.
Printre dotări se regăsesc: ușă metalică, interfon, utilități trase și pozate. Blocul este realizat pe structura de grinzi și cadre, zidărie din cărămidă, izolație termică de 10 cm, încălzire in pardoseala, tâmplărie Kömmerling - tripan (3 foi de sticlă).
Se poate achiziționa loc de parcare propriu la prețul de 7000 EUR.
Proprietatea se află in centrul comunei Baciu, in zona cu locuințe colective cu regim de înălțime mediu si locuințe unifamiliale. La parterul imobilului funcționează un supermarket, și în apropiere găsim stație autobuz. Blocul dispune de curte proprie, parcări exterioare, loc de joaca pentru copii.
Achiziția imobilului se poate realiza și prin credit ipotecar.
Pentru detalii suplimentare și programări la vizionări, vă stăm cu plăcere la dispoziție.
GDN Imobiliare – prietenii și consultanții voștri imobiliari, de la idee până la cheie!
Specificatii
Curent
Apa
Canalizare
Gaz
Acces internet
Centrala proprie
Incalzire pardoseala
Izolatie Exterior
Vopsea lavabila
Faianta
Parchet
Gresie
Ferestre PVC
Usa intrare Metal
Apometre
Contor gaz
Nemobilat
Interfon
Zsolt Kereszturi
0745 206 663
Esti interesat de aceasta proprietate ?