
Apartament 3 camere, decomandat, 78 mp, Cartierul 1 Mai, zona Autogara
Craiova, 1 Mai
144.000€
Camere
3
Suprafata utila
78 mp
Etaj
Parter
Bai
2
An constructie
1989
- ID:P5598
- Nr. camere:3
- Nr. dormitoare:2
- S. utila:78.00 mp
- Comp.:Decomandat
- Etaj:Parter
- Nr. bucatarii:1
- Nr. bai:2
- An constructie:1989
- Structura:Beton
- Tip imobil:Bloc
- Regim inaltime:P+4
Descriere
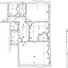
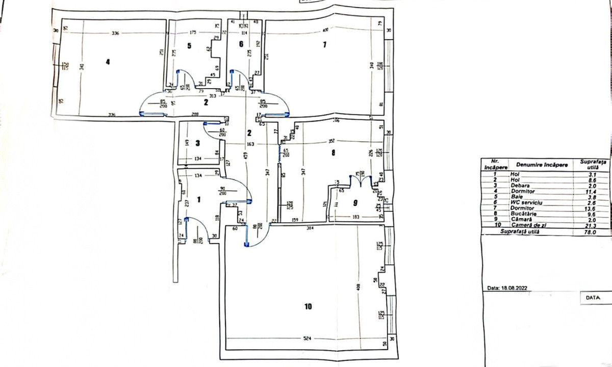
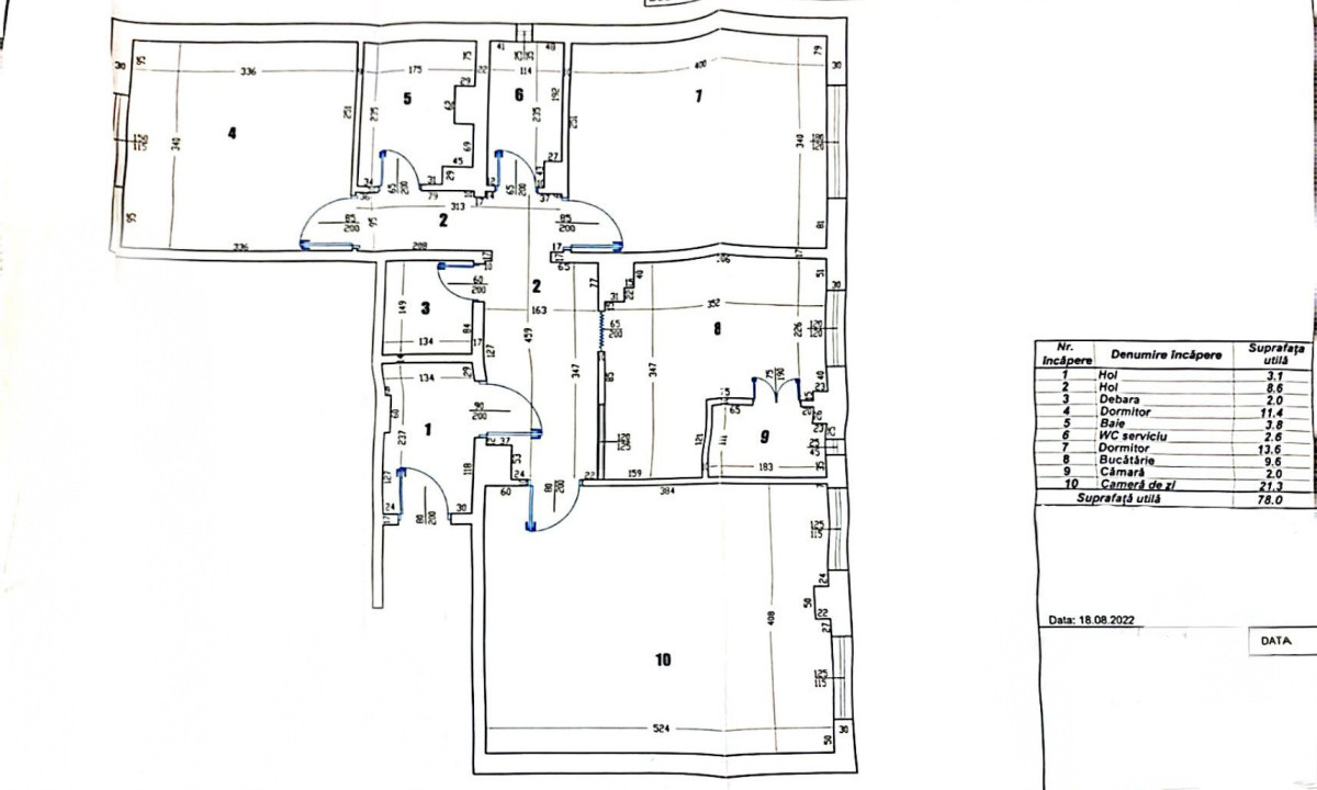
GDN Elite Imobiliare vă propune spre vânzare un apartament de 3 camere decomandat, situat în cartierul 1 Mai, zona Autogara. Imobilul este situat la parter într-un bloc cu 4 etaje, construit în anul 1989 din beton. Acesta beneficiaza de o suprafata utila totala de 78 mp si se remarcă printr-o compartimentare practica dupa cum urmeaza: livingul , bucataria, hol de unde se face intrarea catre cele doua dormitoare, baia principala si baia de serviciu ce beneficiaza de aerisire cu geam. Imobilul dispune de finisaje de calitate, iar instalațiile electrice și sanitare au fost schimbate, beneficiind de centrală termică, iar tot mobilierul este realizat pe comandă. Apartamentul se vinde complet mobilat și utilat. Este ideal pentru un cuplu sau chiar o familie, iar în apropierea sa se află Spitalului Clinic Județean de Urgență Craiova, Parcului Mureșul, Parcului Nicolae Romanescu, Facultatea de Medicină , toate aflate la câteva minute distanță. Vă așteptăm cu drag la o vizionare!
Citeste mai mult
Specificatii
Curent
Apa
Canalizare
Gaz
Centrala proprie
Calorifere
Bloc izolat termic
Vopsea lavabila
Parchet
Gresie
Ferestre Termopan
Usa intrare Metal
Wc serviciu
Debara
Bucatarie Mobilata
Bucatarie Utilata
Apometre
Complet mobilat
Interfon
Florin Nicolae
0739 746 300
Esti interesat de aceasta proprietate ?