








Apartament 2 camere finisat lângă Baza Sportivă Gheorgheni, 54 mp
Cluj-Napoca
167.600€ + TVA
Camere
2
Suprafata utila
54 mp
Suprafata construita
62 mp
Etaj
Etaj 4
Bai
1
An constructie
2024
- ID:P4784
- Nr. camere:2
- Nr. dormitoare:1
- S. utila:54.00 mp
- S. balcoane:4.38 mp
- S. terase:0.00 mp
- S. construita:62.00 mp
- Comp.:Semidecomandat
- Confort:1
- Etaj:Etaj 4
- Nr. bucatarii:1
- Nr. bai:1
- Nr. balcoane:1
- Pret parcare:15.000€ + TVA
- Nr. garaje:1
- An constructie:2024
- Structura:Caramida
- Tip imobil:Bloc
- Regim inaltime:S+P+6
- Orientare:Est
Descriere
GDN Imobiliare vă propune spre vânzare un apartament cu 2 camere, situat pe str. Soporului în cartierul Gheorgheni, și amplasat la etajul 4 al unui imobil construcție nouă, cu 7 niveluri dat în folosință în anul 2024. Imobilul se află în vecinătatea bazei Sportive Gheorgheni.
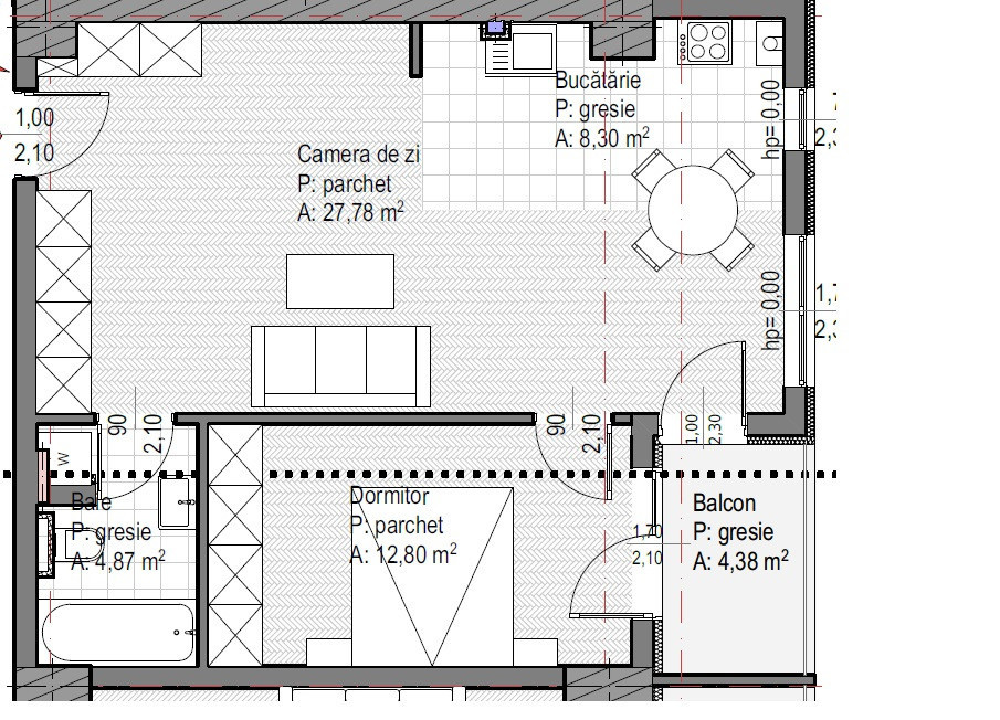
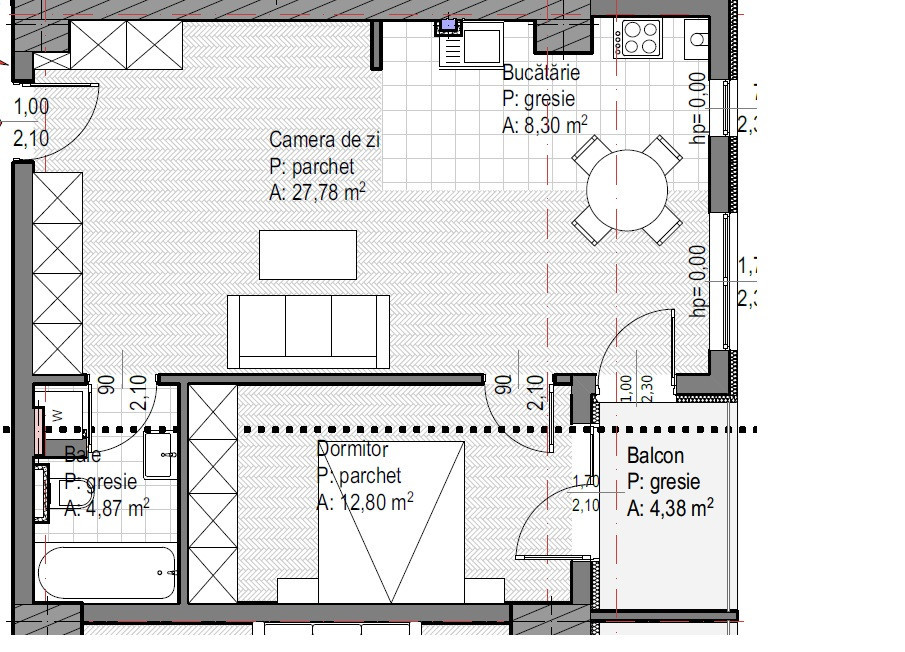
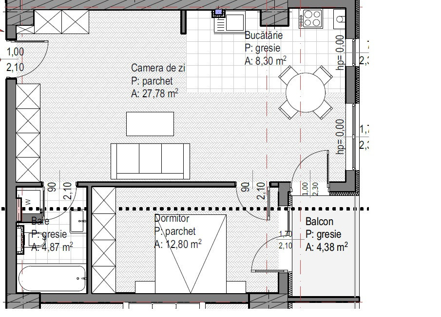
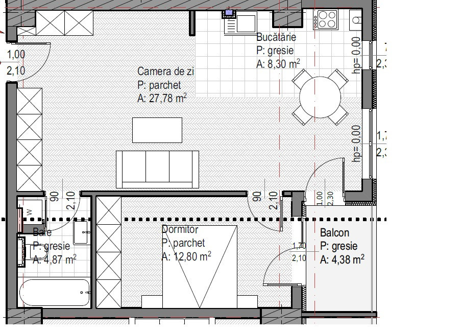
Proprietatea are o suprafață utilă de 53.75 mp, fiind împărțită astfel:
- living cu bucătărie deschisă
- dormitor
- baie
- balcon
Locuința se va preda viitorului proprietar la următorul stadiu de finisare: vopsea lavabilă albă pe pereți si tavane, șapă autonivelantă si parchet laminat de 10 mm, hidroizolație, gresie si faianța la bucătărie și in baie, obiecte sanitare (inclusiv Geberit încastrat), prize, întrerupătoare si corpuri de iluminat, centrală termică si instalație de încălzire in pardoseala, ușa intrare antiefracție si uși interioare, tâmplărie PVC Salamander triplu strat.
Se poate achiziționa și loc de parcare în garajul subteran, la prețul de 15,000 EUR.
Situat într-o zonă în plină dezvoltare, ansamblul din care face parte locuința oferă acces facil unor activități de recreere, servicii, magazine, restaurante.
Apartamentul se vinde de catre persoana juridica, la pretul de 167,600 EUR + TVA.
Achiziția imobilului se poate realiza și prin credit ipotecar. Pentru detalii suplimentare și programări la vizionări, vă stăm cu plăcere la dispoziție!
GDN Imobiliare – prietenii și consultanții voștri imobiliari, de la idee până la cheie!
Citeste mai mult
Proprietatea are o suprafață utilă de 53.75 mp, fiind împărțită astfel:
- living cu bucătărie deschisă
- dormitor
- baie
- balcon
Locuința se va preda viitorului proprietar la următorul stadiu de finisare: vopsea lavabilă albă pe pereți si tavane, șapă autonivelantă si parchet laminat de 10 mm, hidroizolație, gresie si faianța la bucătărie și in baie, obiecte sanitare (inclusiv Geberit încastrat), prize, întrerupătoare si corpuri de iluminat, centrală termică si instalație de încălzire in pardoseala, ușa intrare antiefracție si uși interioare, tâmplărie PVC Salamander triplu strat.
Se poate achiziționa și loc de parcare în garajul subteran, la prețul de 15,000 EUR.
Situat într-o zonă în plină dezvoltare, ansamblul din care face parte locuința oferă acces facil unor activități de recreere, servicii, magazine, restaurante.
Apartamentul se vinde de catre persoana juridica, la pretul de 167,600 EUR + TVA.
Achiziția imobilului se poate realiza și prin credit ipotecar. Pentru detalii suplimentare și programări la vizionări, vă stăm cu plăcere la dispoziție!
GDN Imobiliare – prietenii și consultanții voștri imobiliari, de la idee până la cheie!
Specificatii
Curent
Apa
Canalizare
Gaz
Acces internet
Centrala proprie
Incalzire pardoseala
Izolatie Exterior
Vopsea lavabila
Faianta
Parchet
Gresie
Ferestre PVC
Usa intrare Metal
Terasa
Apometre
Contor gaz
Nemobilat
Interfon
Lift
Spatii agrement
Zsolt Kereszturi
0745 206 663
Esti interesat de aceasta proprietate ?