













Apartament excepțional, la cheie, 2 camere, 52 mp, Baciu
Baciu
150.000€
Camere
2
Suprafata utila
52.38 mp
Suprafata construita
62 mp
Etaj
Etaj 2
Bai
1
Parcari
1
- ID:P4592
- Nr. camere:2
- Nr. dormitoare:1
- S. utila:52.38 mp
- S. balcoane:6.00 mp
- S. construita:62.00 mp
- Comp.:Semidecomandat
- Confort:1
- Etaj:Etaj 2
- Nr. bucatarii:1
- Nr. bai:1
- Nr. balcoane:1
- Nr. parcari:1
- Pret parcare:8.000€
- An constructie:2023
- An renovare:2025
- Structura:Caramida
- Tip imobil:Bloc
- Regim inaltime:P+3
- Orientare:Nord-Vest
Descriere
Apartament 2 camere ansamblu rezidențial nou, Baciu
GDN Imobiliare vă propune spre vânzare un apartament cu 2 camere, modern, luminos, situat în Comuna Baciu, și amplasat la etajul 2 al unui imobil rezidențial construcție nouă, cu 3 niveluri, dat în folosință în anul 2024.
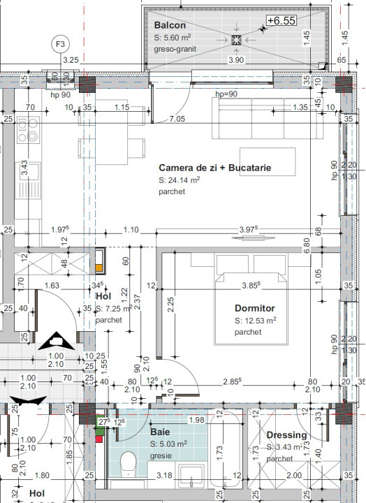
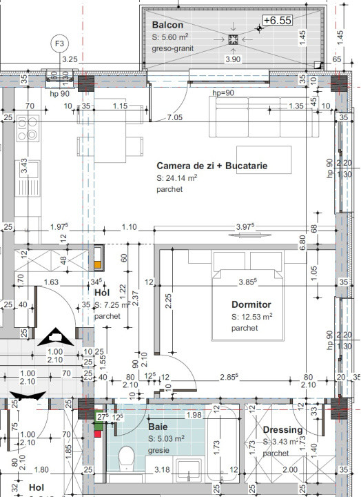
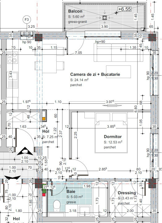
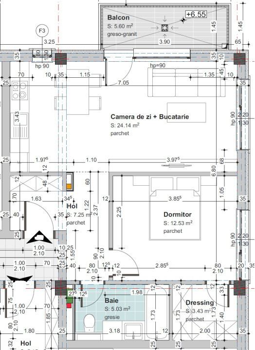
Proprietatea are o suprafață utilă de 52,38 mp, fiind împărțită astfel:
- cameră de zi + bucătărie
- dormitor
- dressing
- baie
- hol
- balcon
Locuința se va preda viitorului proprietar la stadiul ultrafinisat finisat și mobilat, la cheie. Amenajarea locuinței s-a finalizat in vara 2025, s-au folosit materiale de calitate.
Printre dotări se regăsesc: ferestre termopan, ușă metalică, centrală termică, încălzire în pardoseală, interfon.
Apartamentul este mobilat complet și utilat cu toate electrocasnicele necesare: aragaz, cuptor, frigider încorporat,, mașină de spălat, 2 televizoare, conform imaginilor de prezentare.
Blocul este realizat pe structura de grinzi și cadre, zidărie din cărămidă, izolație termică de 10 cm, încălzire in pardoseala, tâmplărie Kömmerling - tripan (3 foi de sticlă).
Se poate achiziționa loc de parcare propriu la prețul de 8000 EUR.
Proprietatea se află in centrul comunei Baciu, in zona cu locuințe colective cu regim de înălțime mediu si locuințe unifamiliale. La parterul imobilului funcționează un supermarket, și în apropiere găsim stație autobuz. Blocul dispune de curte proprie, parcări exterioare, loc de joaca pentru copii.
Achiziția imobilului se poate realiza și prin credit ipotecar. Pentru detalii suplimentare și programări la vizionări, vă stăm cu plăcere la dispoziție!
GDN Imobiliare – prietenii și consultanții voștri imobiliari, de la idee până la cheie!
Citeste mai mult
GDN Imobiliare vă propune spre vânzare un apartament cu 2 camere, modern, luminos, situat în Comuna Baciu, și amplasat la etajul 2 al unui imobil rezidențial construcție nouă, cu 3 niveluri, dat în folosință în anul 2024.
Proprietatea are o suprafață utilă de 52,38 mp, fiind împărțită astfel:
- cameră de zi + bucătărie
- dormitor
- dressing
- baie
- hol
- balcon
Locuința se va preda viitorului proprietar la stadiul ultrafinisat finisat și mobilat, la cheie. Amenajarea locuinței s-a finalizat in vara 2025, s-au folosit materiale de calitate.
Printre dotări se regăsesc: ferestre termopan, ușă metalică, centrală termică, încălzire în pardoseală, interfon.
Apartamentul este mobilat complet și utilat cu toate electrocasnicele necesare: aragaz, cuptor, frigider încorporat,, mașină de spălat, 2 televizoare, conform imaginilor de prezentare.
Blocul este realizat pe structura de grinzi și cadre, zidărie din cărămidă, izolație termică de 10 cm, încălzire in pardoseala, tâmplărie Kömmerling - tripan (3 foi de sticlă).
Se poate achiziționa loc de parcare propriu la prețul de 8000 EUR.
Proprietatea se află in centrul comunei Baciu, in zona cu locuințe colective cu regim de înălțime mediu si locuințe unifamiliale. La parterul imobilului funcționează un supermarket, și în apropiere găsim stație autobuz. Blocul dispune de curte proprie, parcări exterioare, loc de joaca pentru copii.
Achiziția imobilului se poate realiza și prin credit ipotecar. Pentru detalii suplimentare și programări la vizionări, vă stăm cu plăcere la dispoziție!
GDN Imobiliare – prietenii și consultanții voștri imobiliari, de la idee până la cheie!
Specificatii
Curent
Apa
Canalizare
Gaz
CATV
Acces internet
Centrala proprie
Incalzire pardoseala
Izolatie Exterior
Vopsea lavabila
Faianta
Parchet
Gresie
Ferestre PVC
Ferestre Termopan
Usa intrare Metal
Usa interior Lemn
Dressing
Bucatarie Mobilata
Bucatarie Utilata
Apometre
Contor gaz
Complet mobilat
Interfon
Curte comuna
Zsolt Kereszturi
0745 206 663
Esti interesat de aceasta proprietate ?