





Aceasta proprietate nu mai este activa! Pentru oferte similare contactati agentul
retras
Garsoniera decomandata, 45mp, cartier 1 Mai, zona Parc Nicolae Romanescu
Craiova, 1 Mai
108.000€ + TVA
Camere
1
Suprafata utila
45 mp
Etaj
Parter
Bai
1
An constructie
2025
- ID:P4874
- Nr. camere:1
- Nr. dormitoare:1
- S. utila:45.00 mp
- Comp.:Decomandat
- Confort:1
- Etaj:Parter
- Nr. bucatarii:1
- Nr. bai:1
- An constructie:2025
- Structura:BCA
- Tip imobil:Bloc
- Regim inaltime:S+P+3
- Orientare:Est
- Clasa energetica:A
Descriere
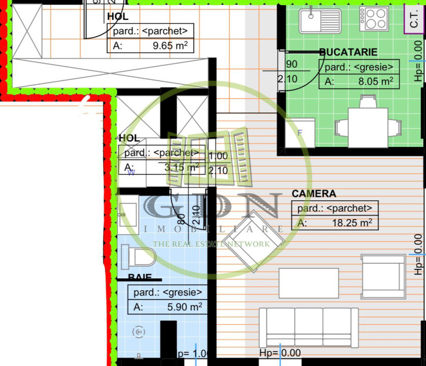
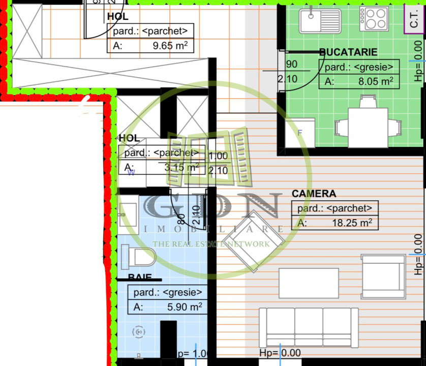
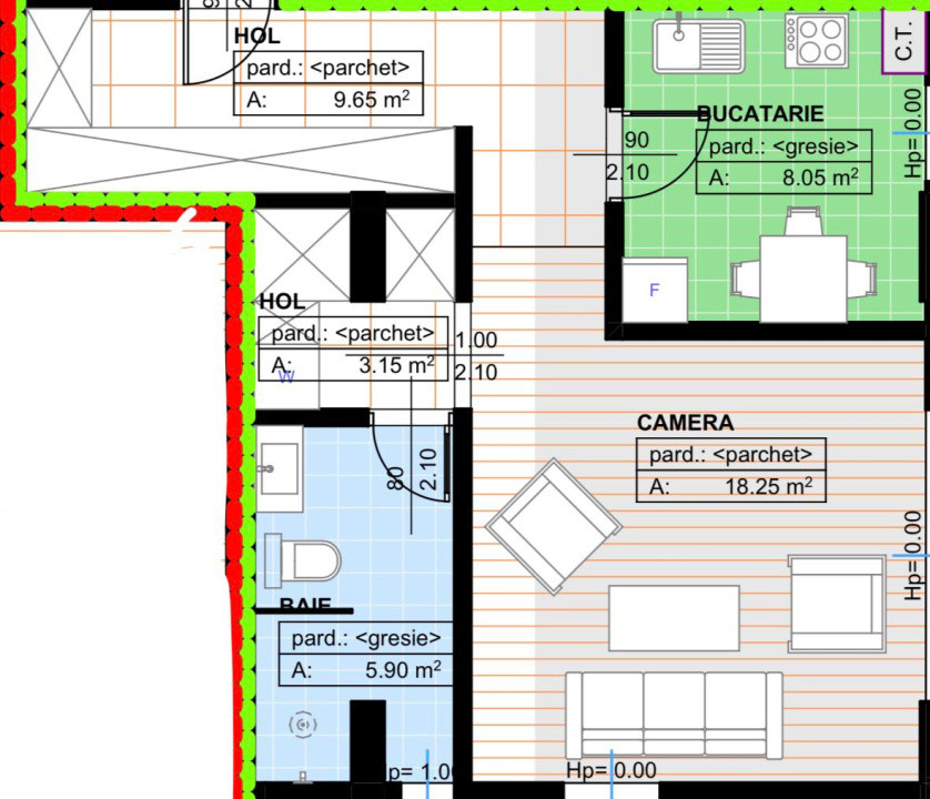
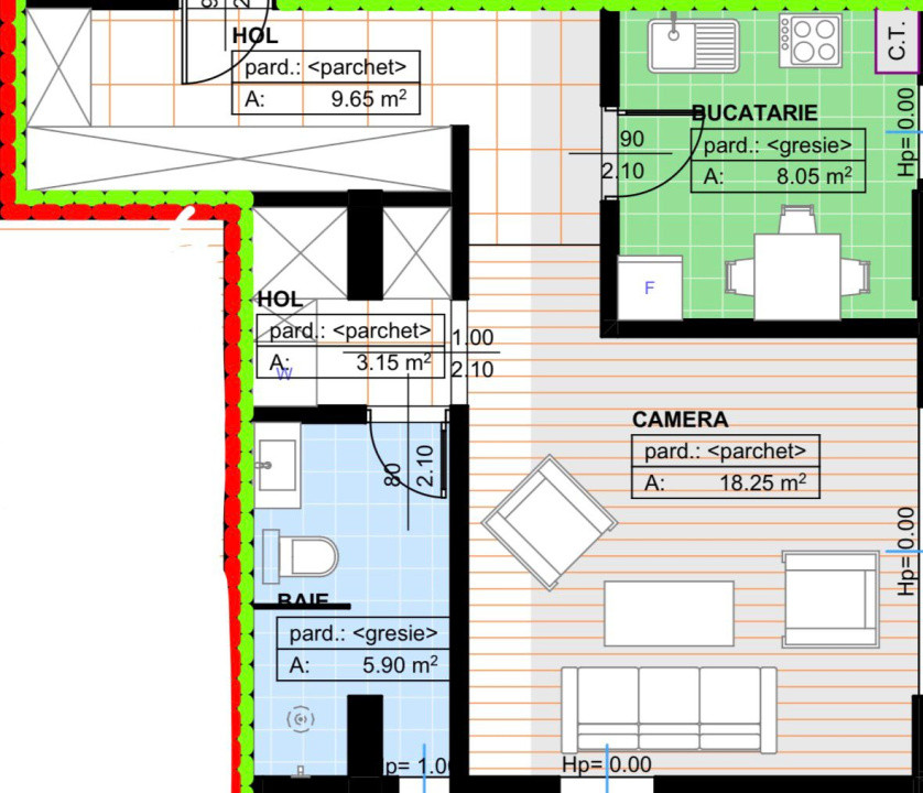
GDN Elite va propune spre vânzare o garsoniera ce beneficiază de o compartimentare decomandata, cu o suprafață utila totala de 45, fiind situat la parterul unui bloc S+P+3, cu vedere către Parcul Nicolae Romanescu, ce dispune de lift, in Cartierul 1 Mai, zona Parcul Nicolae Romanescu. Blocul este în construcție, urmând sa fie finalizat in decembrie 2026 cu termen de gratie de 3 luni. Compartimentarea exterioara este realizata din BCA de 25cm izolat cu polistiren de 10cm, imobilele se vor preda la cheie, cu toatele finisajele incluse, centrala termica in individuală, încălzirea fiind prin pardoseala, tâmplărie tripan, iar baia v-a fi utilata. Imobilul este compartimentat astfel : hol la intrare unde se regăsește zona de pantofar/ cuier/ oglinda, din acest hol se face accesul către living, bucătărie. În incinta ansamblului se vor regăsii locurile de parcare de care vor beneficia viitorii proprietari , atât la suprateran cat si la subteran, cu prețuri cuprinse intre 8.000 – 13.000 euro+ TVA. Avansul minim este cel de 30%, prețurile pe mp, fiind diferite în funcție de avans , existând posibilitatea de achitare pe etape sau chiar cu rate către dezvoltator cu un avans de minim 25% . Va asteptam cu drag la o vizionare!
Citeste mai mult
Specificatii
Curent
Apa
Canalizare
CATV
Telefon
Acces internet
Centrala proprie
Incalzire pardoseala
Izolatie Exterior
Vopsea lavabila
Parchet
Gresie
Ferestre Termopan
Usa intrare Metal
Usa interior Lemn
Interfon
Lift
Esti interesat de aceasta proprietate ?